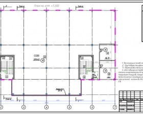
Здание из металлокаркаса и сэндвич панелей. На первом этаже здания расположен торговый зал с клиентской зоной. Также на первом этаже расположено большое складское помещение с системой пожаротушения. На антресольном этаже размещены комфортные помещения для менеджеров. На втором этаже расположены офисные помещения.
Расчитать цену проектирования Расчитать цену согласования Рассчитать стоимость строительства Заявка на расчет здания под ключ