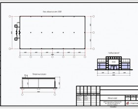
Одноэтажное здание размером 18х36м. Полезная высота потолка 4,7м. В здании расположены помещение столовой 324м2, помещение кухни, складское помещение, помещение холодильник, а также подсобные помещения. Для расширения зоны обслуживания клиентов предусмотрена возможность продажи блюд по меню в легковые автомобили. Для этого предусмотрено три окна выдачи и стойка с видеосвязью для формирования заказов. Здание выполнено на основе металлокаркаса и сендвич-панелей.
Расчитать цену проектирования Расчитать цену согласования Рассчитать стоимость строительства Заявка на расчет здания под ключ