
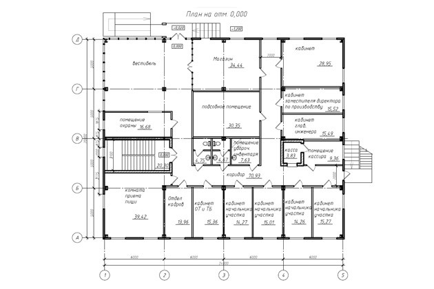
На этой неделе наша компания закончила проектирование административно-офисного здания в г.Красноярске. Здание двухэтажное с эксплуатируемым цоколем. Размеры в плане 25х20м. На первом и втором этаже здания запроектированы офисные помещения, в цоколе здания размещен гараж для легковых автомобилей. Здание выполнено из металлокаркаса и сэндвич-панелей.
Наша компания предлагает комплекс услуг по проектированию и капитальному строительству торговых центров, складов, производственных и складских комплексов, офисных зданий, многофункциональных комплексов. Полный комплекс проектных работ. Архитектурное проектирование и дизайн. Согласования и технический надзор. Звоните, будем рады видеть вас нашими клиентами!!!


